Опис
Котел Kronas Standart (Стандарт) – це оптимальне поєднання високих споживчих якостей і вартості. Пропонуємо котли потужністю 14, 18, 22 і 26 кВт. Моделі серії Kronas Standart комплектуються електронним блоком управління і вентилятором. В якості палива можна використовувати дрова, паливні брикети, торф і кам’яне вугілля.
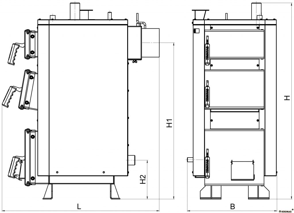
Технічні особливості котла Kronas Standart:
- Компактні габарити в поєднанні з великою топкою.
- Двухполочний конвективний теплообмінник.
- Тридверна система доступу до котла.
- Наявність в конструкції шибера тяги.
- Можливість установки механічного регулятора тяги.
- Вбудований електронний термометр.

















